/
【外観】
- 物件名
- 学園木花台南3丁目 中古戸建
- 価格
- 2,080万円
- 建物面積
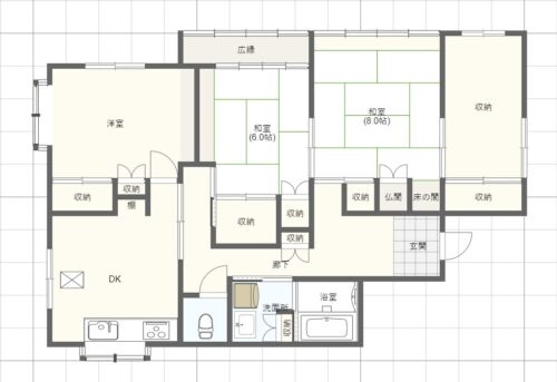
- 97.00㎡
- 土地面積
- 99.72坪(329.68㎡)
- 築年月
- 1991年6月(築34年)
- 総戸数
- -
- 設備条件
-
- 設備(その他)
-
-
-
- 駐車場/月額
- -/-
- 土地権利
- 所有権
- 国土法届出
- 不要
- 用途地域
- 第一種低層住居専用
- 取引態様
- 仲介
- 引渡し
- 相談
- 備考
- 宮崎市周辺にある物件をお求めの方は「学園木花台南3丁目 中古戸建」はいかがでしょうか。快適な住環境が魅力的な中古の戸建て物件で充実した日々を過ごしませんか。不動産の活用法はさまざまです。ご自身に適した不動産物件をお求めであれば、お気軽に当社へご連絡ください。まずはお問い合わせからお待ちしております。
-
中学校
宮崎市立木花中学校
236m(3分)
-
スーパー
マックスバリュ 学園木花台店
809m(11分)
-
小学校
宮崎市立学園木花台小学校
818m(11分)
-
コンビニエンスストア
ファミリーマート学園木花台店
1171m(15分)
学園木花台南3丁目 中古戸建の基本情報
学園木花台南3丁目 中古戸建の詳細情報
学園木花台南3丁目 中古戸建のコメント(おすすめポイント)
こちらは中古一戸建ての物件です。日南線木花周辺の物件探しで、お悩みがございましたら0985-33-9000まで何なりとお申し付け下さい。まるさ住宅が適格にアドバイスをご提供致します。
学園木花台南3丁目 中古戸建で募集中の物件
周辺施設
近隣の物件
よく見られている物件
学園木花台南3丁目 中古戸建





